1. Home
  2. Search Listings
  3. 9772 Rennes Ln Delray Beach, FL - 33446-2329
  • MLS® #: A11897867
  • 9772 Rennes Ln
  • Delray Beach, FL 33446-2329
  • $2,299,000
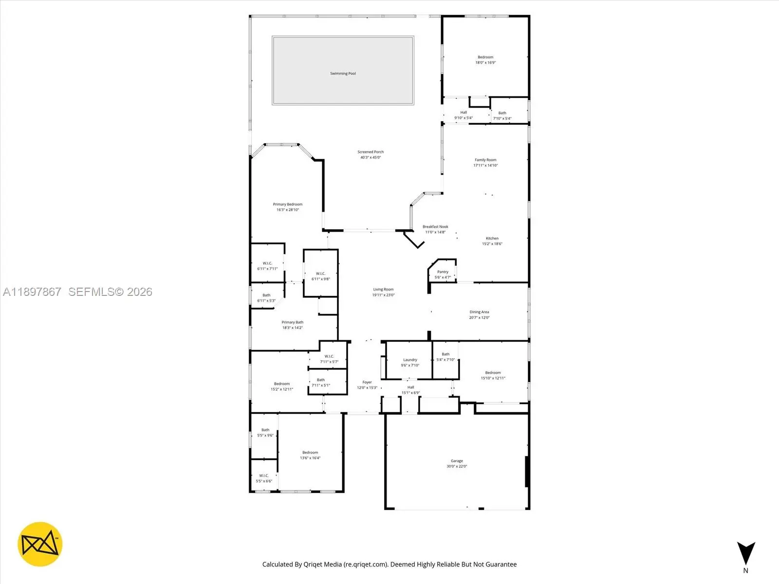
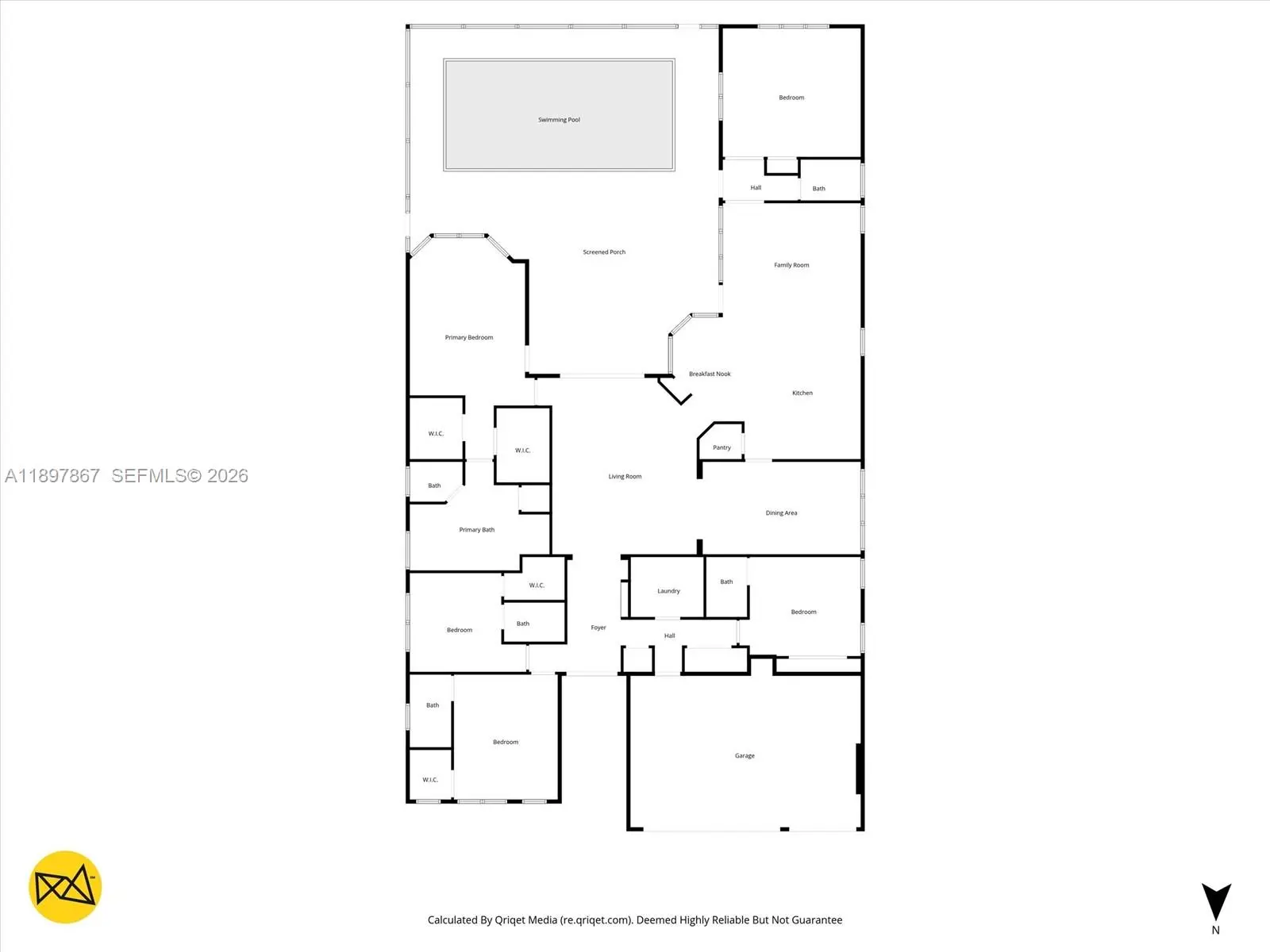
  • 5 Beds, 5 Bath, 3,968 SqFt
  • Residential

Motivated seller, price reduced by $50,000. Beautiful Charleston Grande model in Seven Bridges! This one-story 5BR/5BA home offers nearly 4,000 sq. ft. on one of the largest corner lots, providing complete privacy with no homes or roads directly facing the property. Just a short walk to the 30,000 sq. ft. clubhouse. Features include a gourmet kitchen with high-end stainless steel gas appliances, formal dining room, wet bar, impact glass windows, spacious ensuite bedrooms, and a circular driveway. The primary suite boasts a coffered ceiling, dual walk-in closets, and a luxurious bathroom with dual sinks. Enjoy the screened saltwater pool with heater and outdoor kitchen. Additional upgrades include a whole-house generator, camera system, and full-home water filtration. Meticulously maintained and move-in ready—this home is a must-see!

View Virtual Tour

Essential Information

  • MLS® #A11897867
  • Price$2,299,000
  • CAD Dollar$3,202,792
  • UK Pound£1,741,651
  • Euro€2,004,406
  • HOA Fees1081
  • Bedrooms5
  • Bathrooms5.00
  • Full Baths5
  • Square Footage3,968
  • Year Built2018
  • TypeResidential
  • Sub-TypeSingle Family Residence
  • StyleOne Story
  • StatusActive Under Contract

Community Information

  • Address9772 Rennes Ln
  • Area4740
  • SubdivisionSeven Bridges
  • CityDelray Beach
  • CountyPalm Beach
  • StateFL
  • Zip Code33446-2329

Amenities

  • ParkingCircular Driveway
  • # of Garages3
  • GaragesGarage Door Opener
  • ViewGarden

Features

Bar/Lounge, Clubhouse, Fitness, Game Room, Gated, Pickleball, Pool, Street Lights, Sidewalks, Tennis Court(s)

Interior

  • InteriorMarble, Tile
  • HeatingCentral, Gas
  • CoolingCentral Air
  • # of Stories1

Interior Features

Bidet, Built-in Features, Bedroom on Main Level, Breakfast Area, Dining Area, Separate/Formal Dining Room, Dual Sinks, Entrance Foyer, Eat-in Kitchen, First Floor Entry, Jetted Tub, Main Level Primary, Pantry, Split Bedrooms, Separate Shower, Walk-In Closet(s), Attic

Appliances

Built-In Oven, Dryer, Dishwasher, Electric Water Heater, Disposal, Gas Range, Microwave, Refrigerator, Washer

Exterior

  • RoofBarrel
  • ConstructionBlock

Exterior Features

Fence, Outdoor Grill, Outdoor Shower, Other, Patio

School Information

  • ElementaryWhispering Pines
  • MiddleEagles Landing
  • HighOlympic Heights Community High
  • Office: Property Pro Partners, Llc.

Property Location

Please provide a valid email address.

9772 Rennes Ln on www.www.westerncommunities.us

Offered at the current list price of $2,299,000, this home for sale at 9772 Rennes Ln features 5 bedrooms and 5 bathrooms. This real estate listing is located in Seven Bridges of Delray Beach, FL 33446-2329 and is approximately 3,968 square feet. 9772 Rennes Ln is listed under the MLS ID of A11897867 and has been on the Delray Beach real estate market for 164 days.

Similar Listings to 9772 Rennes Ln

Photo of Listing #R11105967
  • MLS® #: R11105967
  • 322 Nw 16th Street
  • Delray Beach, FL 33444
  • $2,399,000
  • 4 Bed, 5 Bath, 2,550 SqFt
  • Residential
Add as Favorite
Photo of Listing #R11164608
  • MLS® #: R11164608
  • 518 Gardenia Terrace
  • Delray Beach, FL 33444
  • $2,475,000
  • 5 Bed, 4 Bath, 2,975 SqFt
  • Residential
Add as Favorite
Photo of Listing #R11114994
  • MLS® #: R11114994
  • 9297 Tropez Lane
  • Delray Beach, FL 33446
  • $2,199,000
  • 3 Bed, 4 Bath, 3,373 SqFt
  • Residential
Add as Favorite
Photo of Listing #R11162373
  • MLS® #: R11162373
  • 4535 Oak Tree Court
  • Delray Beach, FL 33445
  • $2,299,000
  • 4 Bed, 3 Bath, 3,506 SqFt
  • Residential
Add as Favorite

The data relating to real estate on this web site comes in part from the Internet Data Exchange program of the MLS of the REALTOR® Association of Greater Miami and the Beaches, and is updated as of March 31st, 2026 at 10:22am CDT (date/time).

All information is deemed reliable but not guaranteed by the MLS and should be independently verified. All properties are subject to prior sale, change, or withdrawal. Neither listing broker(s) nor Waterfront Properties and Club Communities shall be responsible for any typographical errors, misinformation, or misprints, and shall be held totally harmless from any damages arising from reliance upon these data. © 2026 MLS of RAMB.

The information being provided is for consumers' personal, non-commercial use and may not be used for any purpose other than to identify prospective properties consumers may be interested in purchasing