1. Home
  2. Search Listings
  3. 23 Dixie Boulevard Delray Beach, FL - 33444
NEW
  • MLS® #: B26005710
  • 23 Dixie Boulevard
  • Delray Beach, FL 33444
  • $2,175,000
  • 3 Beds, 3 Bath, 1,984 SqFt
  • Residential

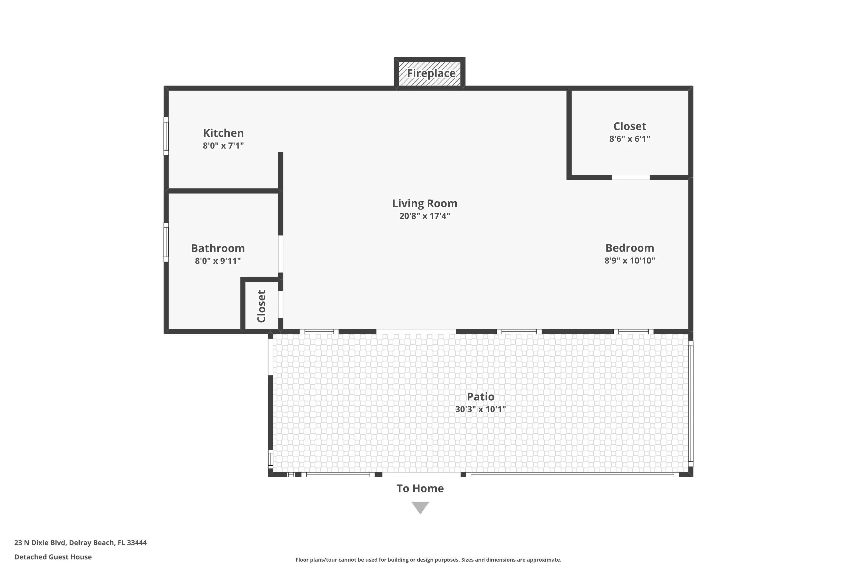
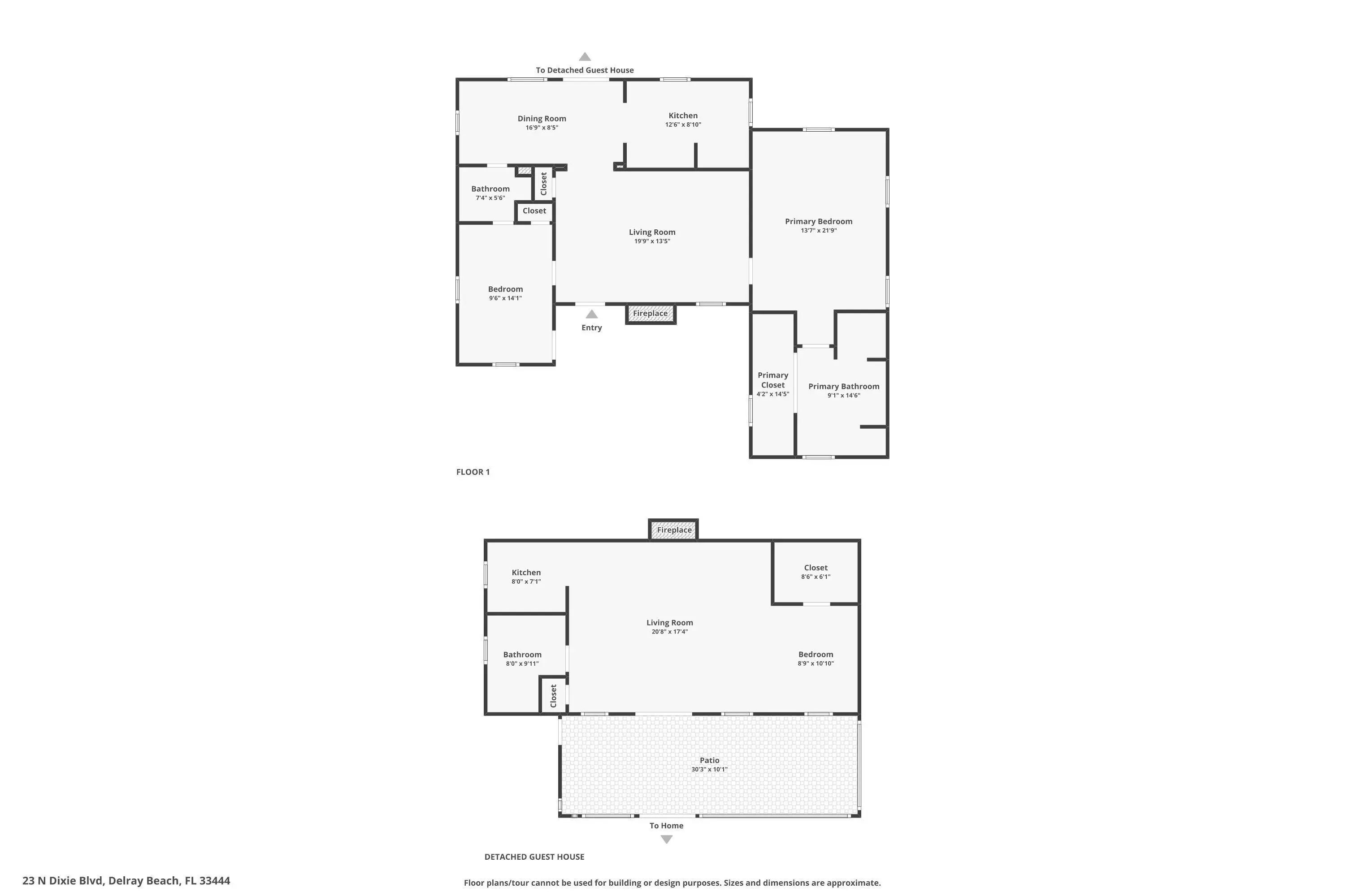
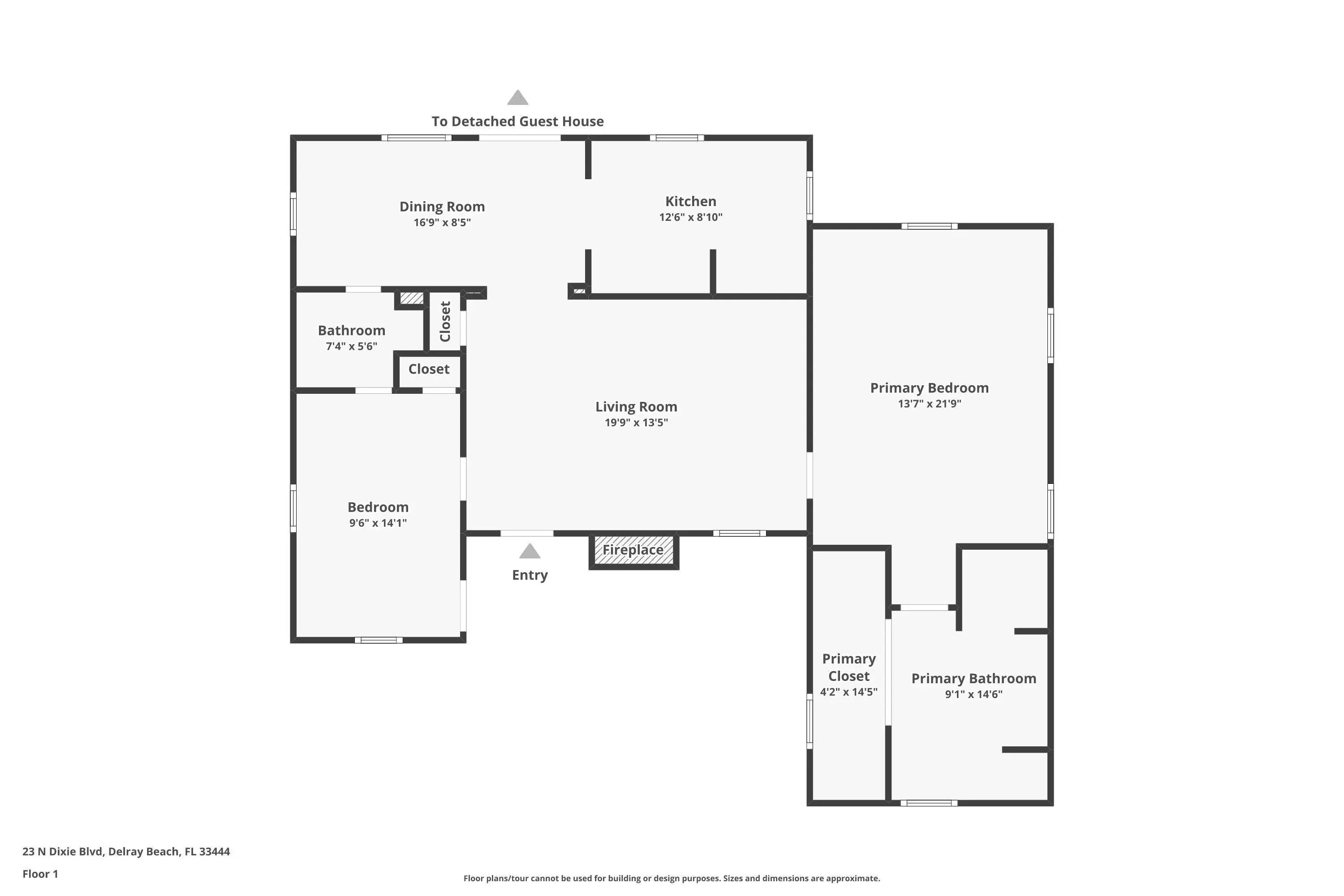
Discreetly positioned on a quiet cul-de-sac, just moments from the beach and within walking distance to the renowned dining, boutiques, and vibrant culture of Pineapple Grove and Atlantic Avenue, this exceptional residence is nestled in the coveted historic Del Ida enclave of Delray Beach. The 2-bedroom, 2-bath primary home is complemented by a separate oversized 1-bedroom, 1-bath guest house with a kitchenette, offering a rare combination of privacy, design, and effortless luxury. Reimagined from the studs in 2016 and curated with refined upgrades through 2025, the property features a metal roof, impact glass, new A/C systems, tankless water heating, whole-house filtration, and thoughtfully updated kitchen and bath finishes with quartzite and granite surfaces alongside a full suite of newer appliances. Set on an expansive 10,502 sq ft parcel, the grounds evoke a private resort, complete with a heated Gunite pool, lush tropical landscaping, turf, irrigation, and a screened florida room designed for seamless indoor-outdoor living. This is a home where every detail reflects sophistication, comfort, and a lifestyle defined by elegance, privacy, and convenience. *Home completely renovated from studs including new kitchen, bathrooms, metal roof and pool - 2016 *New 320 Sq Ft enclosed Florida Room - 2021 *New Landscape Lighting throughout property 2021 *New Turf installed in backyard - 2021 *New Landscaping and Landscaping Rock 2021 - 2025 *New Tankless Water Heater in Main House 2023 *New Whole House Water System 2022 *Exterior Painted and Caulked 2023 *Hurricane Windows and Doors *New Refrigerator in Main Home 2025 *New Washing Machine 2025 *New Main House AC Unit 2024 *New Pool House AC Unit 2025

Essential Information

  • MLS® #B26005710
  • Price$2,175,000
  • CAD Dollar$3,028,085
  • UK Pound£1,646,455
  • Euro€1,895,241
  • Bedrooms3
  • Bathrooms3.00
  • Full Baths3
  • Square Footage1,984
  • Year Built1953
  • TypeResidential
  • Sub-TypeSingle Family Residence
  • RestrictionsNo Restrictions
  • StyleRanch, Key West
  • StatusActive Under Contract
  • HOPANo Hopa

Community Information

  • Address23 Dixie Boulevard
  • Area4360
  • SubdivisionDEL IDA PARK
  • DevelopmentDEL IDA PARK
  • CityDelray Beach
  • CountyPalm Beach
  • StateFL
  • Zip Code33444

Amenities

  • Parking Spaces4
  • ParkingDriveway, Open, Paver Block
  • ViewGarden, Pool
  • Has PoolYes
  • Pets AllowedYes, No Restrictions

Utilities

Cable Available, Electricity Available, Sewer Connected, Underground Utilities, Water Connected

Pool

Electric Heat, Gunite, Heated, In Ground, Equipment Included, Private

Interior

  • HeatingCentral
  • CoolingCentral Air, Ceiling Fan(s)
  • # of Stories1
  • StoriesOne

Interior Features

Walk-In Closet(s), Bedroom Layout - Split, Closet Cabinetry

Appliances

Electric Water Heater, Tankless Water Heater, Water Purifier Owned, Cooktop, Dryer, Dishwasher, ENERGY STAR Qualified Refrigerator, ENERGY STAR Qualified Washer, Ice Maker, Oven, Other, Refrigerator, Water Heater, Water Purifier, Washer, Electric Cooktop

Exterior

  • RoofMetal
  • ConstructionFiber Cement, Wood Siding

Exterior Features

Garden, Storage, Custom Lighting

Lot Description

Many Trees, Landscaped, Oversized Lot

Windows

Plantation Shutters, Storm Window(s)

School Information

  • ElementaryPlumosa School of the Arts K-8
  • MiddleCarver Community
  • HighAtlantic
  • Office: Coldwell Banker Realty /delray Beach

Property Location

Please provide a valid email address.

23 Dixie Boulevard on www.www.westerncommunities.us

Offered at the current list price of $2,175,000, this home for sale at 23 Dixie Boulevard features 3 bedrooms and 3 bathrooms. This real estate listing is located in DEL IDA PARK of Delray Beach, FL 33444 and is approximately 1,984 square feet. 23 Dixie Boulevard is listed under the MLS ID of B26005710 and has been available through www.www.westerncommunities.us for the Delray Beach real estate market for 5 days.

Similar Listings to 23 Dixie Boulevard

Photo of Listing #R11135658
  • MLS® #: R11135658
  • 213 Kings Lynn
  • Delray Beach, FL 33444
  • $2,175,000
  • 4 Bed, 4 Bath, 2,585 SqFt
  • Residential
Add as Favorite
Photo of Listing #R11164678
  • MLS® #: R11164678
  • 2001 Nw 1st Avenue
  • Delray Beach, FL 33444
  • $2,175,000
  • 4 Bed, 3 Bath, 2,787 SqFt
  • Residential
Add as Favorite
Photo of Listing #R11133859
  • MLS® #: R11133859
  • 514 Ne 3rd Avenue
  • Delray Beach, FL 33444
  • $2,000,000
  • 6 Bed, 7 Bath, 4,941 SqFt
  • Residential
Add as Favorite
Photo of Listing #B26003545
  • MLS® #: B26003545
  • 530 Nw 14th Street
  • Delray Beach, FL 33444
  • $2,195,000
  • 3 Bed, 2 Bath, 2,116 SqFt
  • Residential
Add as Favorite

All listings featuring the BMLS logo are provided by Beaches MLS Inc. Copyright 2026 Beaches MLS. This information is not verified for authenticity or accuracy and is not guaranteed.
© 2026 Beaches Multiple Listing Service, Inc. All rights reserved.

Listing information last updated on March 31st, 2026 at 4:18pm CDT.