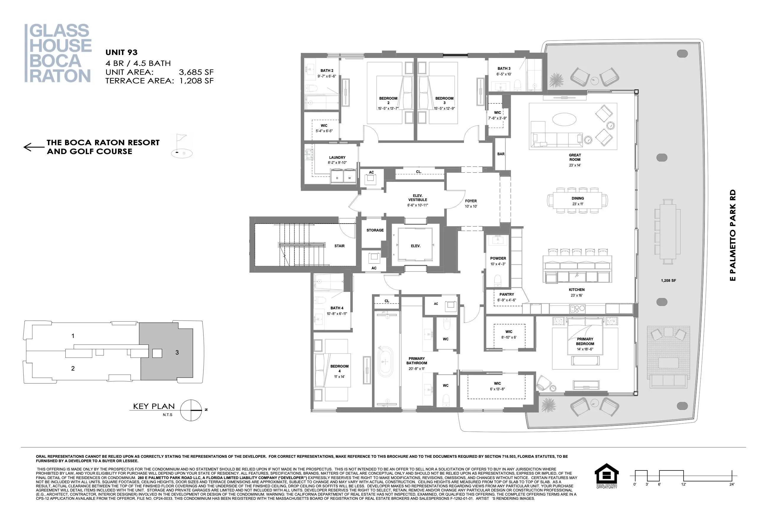
Experience unparalleled luxury in the first modern glass house building of its kind with a 10th floor rooftop oasis in the heart of downtown. Boca Raton. Glass House Boca Raton features underground parking with private garage for your residence, a 24 hour concierge, private lounge, fitness center with spa, French Riviera-inspired rooftop pool and jacuzzi, private cabanas, outdoor catering kitchen with barbecue, covered seating area, fire pit, and stunning views of the water & The Boca Raton Club golf course. This opulent Penthouse double corner residence is 4 Bedroom 4.5 Bathrooms and features 3,685 interior square feet & 1,208 sq ft terrace area. Sweeping Panoramic city and ocean views North, West, and East from your expansive wrap around terrace. 11' ceilings, private elevator entry,floor to ceiling glass with stacked doors which open creating a seamless transition from indoor to outdoor living. Glass House Boca Raton offers a premier collection of 28 luxury private corner residences ranging from two-four Bedrooms, where luxury & privacy merge to create your perfect home. Designed by renowned garciastromberg Architects. Offering membership to the Boca Raton Resort and Sollis Health Concierge Membership both subject to availability. Steps away from the finest beaches, restaurants, shopping, and the world renowned Boca Raton Club and golf course.
View Virtual TourBike Storage, Community Room, Extra Storage, Exercise Room, Lobby, Pool, Sauna
Cable, 3-Phase Electric, Public Sewer, Public Water
2+ Spaces, Assigned, Garage - Building
Elevator, Fire Sprinkler, Cook Island, Pantry, Walk-in Closet
Cooktop, Dishwasher, Disposal, Dryer, Freezer, Ice Maker, Microwave, Refrigerator, Wall Oven
Central Building, Central Individual, Zoned
Central Building, Central Individual, Zoned
Boca Raton Community Middle School
Boca Raton Community High School



Add as Favorite
Add as Favorite
Add as Favorite
Add as Favorite
All listings featuring the BMLS logo are provided by Beaches MLS Inc. Copyright 2025 Beaches MLS. This information is not verified for authenticity or accuracy and is not guaranteed.
© 2025 Beaches Multiple Listing Service, Inc. All rights reserved.
Listing information last updated on December 14th, 2025 at 6:00am CST.