1. Home
  2. Search Listings
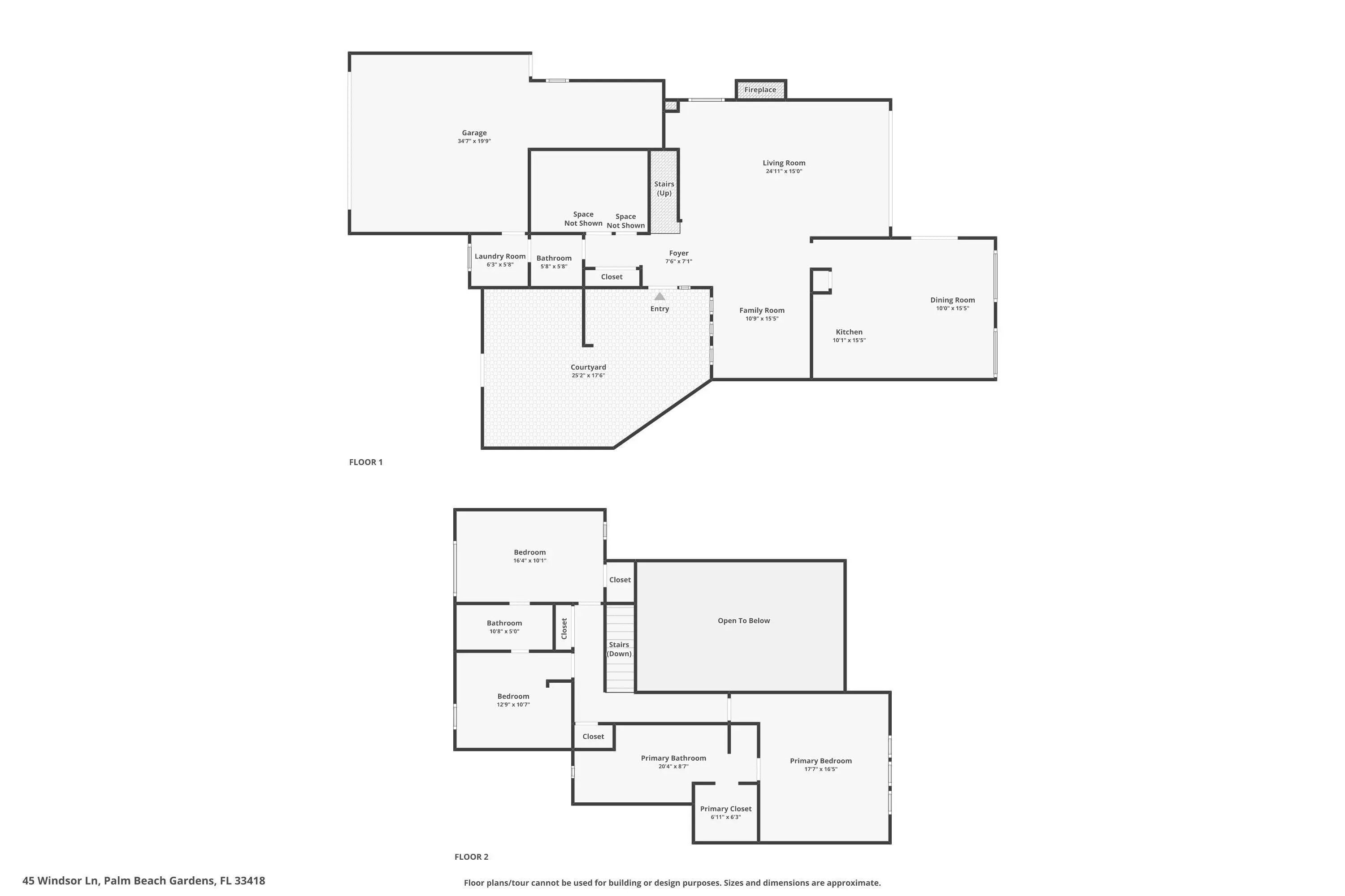
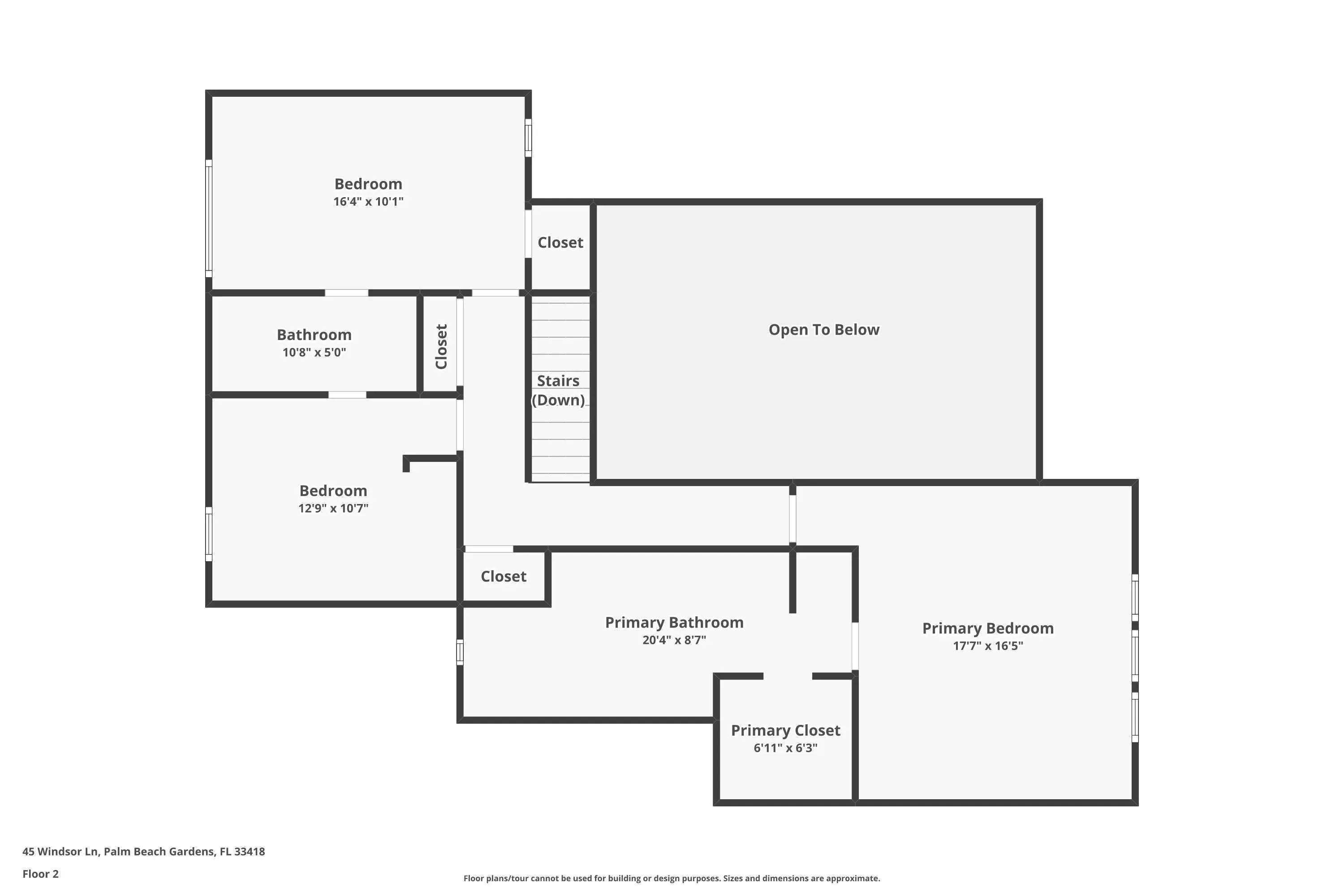
  3. 45 Windsor Lane Palm Beach Gardens, FL - 33418
  • MLS® #: RX-11159288
  • 45 Windsor Lane
  • Palm Beach Gardens, FL 33418
  • $709,000
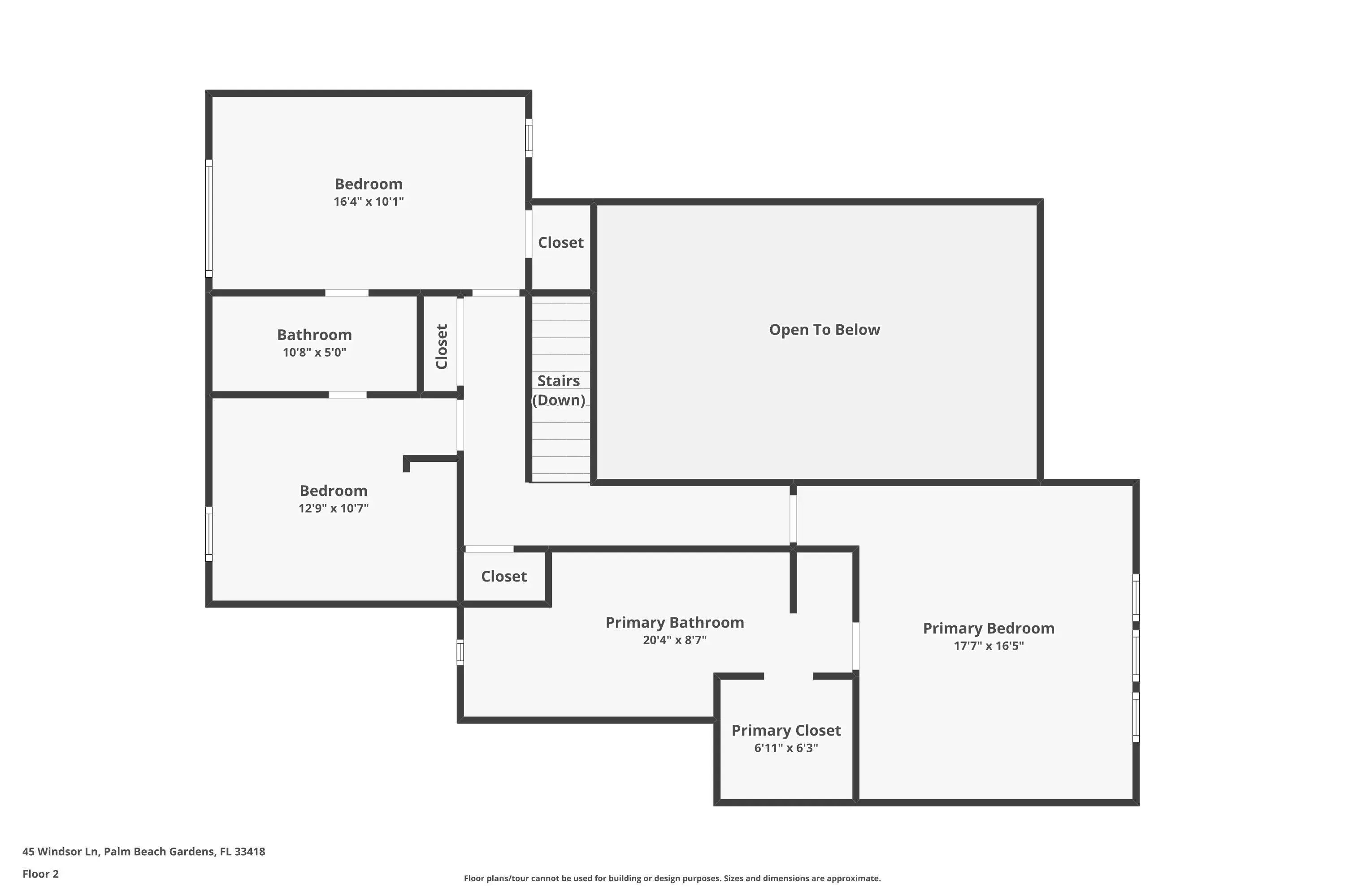
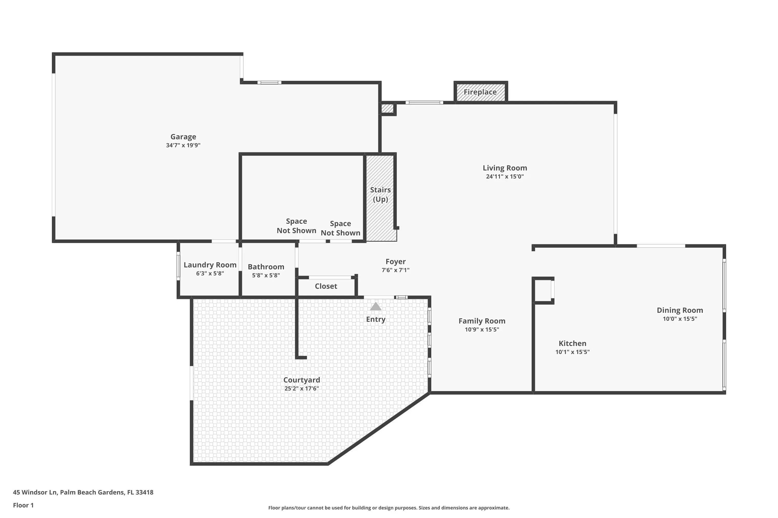
  • 3 Beds, 3 Bath, 2,302 SqFt
  • Residential

Beautifully updated single-family home located in the Barclay Club at PGA National, a renowned golf and resort community in Palm Beach Gardens. This move-in-ready residence features a new roof, impact windows, brand-new A/C condenser and handler, new hot water heater, and a 2-car garage. The large kitchen offers ample storage plus new dishwasher, oven, and microwave, along with new washer and dryer. Enjoy an electric fireplace, upgraded primary bath and upstairs full bath, and a maintenance-free backyard--perfect for relaxing or cooking out and enjoying the Florida sunshine.Barclay Club offers a community pool and a walkable, bike-friendly setting. PGA National is known for its optional resort membership and five championship golf courses, along with tennis, pickleball, spa, fitness

View Virtual Tour

Essential Information

  • MLS® #RX-11159288
  • Price$709,000
  • CAD Dollar$961,115
  • UK Pound£518,178
  • Euro€595,449
  • HOA Fees367
  • Bedrooms3
  • Bathrooms3.00
  • Full Baths2
  • Half Baths1
  • Square Footage2,302
  • Year Built1989
  • TypeResidential
  • Sub-TypeSingle Family Detached
  • Style< 4 Floors, Multi-Level
  • StatusNew
  • HOPANo Hopa

Restrictions

Buyer Approval, No Lease First 2 Years

Community Information

  • Address45 Windsor Lane
  • Area5360
  • SubdivisionAT PGA NATL
  • DevelopmentBARCLAY CLUB
  • CityPalm Beach Gardens
  • CountyPalm Beach
  • StateFL
  • Zip Code33418

Amenities

  • AmenitiesPool
  • # of Garages2
  • ViewGarden
  • WaterfrontNone
  • Pets AllowedYes

Utilities

Cable, Electric, Public Sewer, Public Water

Parking

2+ Spaces, Driveway, Garage - Attached

Interior

  • HeatingCentral, Electric
  • CoolingCeiling Fan, Central, Electric
  • FireplaceYes
  • # of Stories2
  • Stories2.00

Interior Features

Built-in Shelves, Ctdrl/Vault Ceilings, Fireplace(s), Pull Down Stairs, Volume Ceiling, Walk-in Closet

Appliances

Dishwasher, Dryer, Microwave, Range - Electric, Refrigerator, Washer, Water Heater - Elec

Exterior

  • Exterior FeaturesOpen Porch, Room for Pool
  • WindowsImpact Glass
  • RoofConcrete Tile, Flat Tile
  • ConstructionBlock, CBS, Concrete

Lot Description

< 1/4 Acre, Paved Road, Public Road, Sidewalks

School Information

  • ElementaryTimber Trace Elementary School
  • MiddleWatson B. Duncan Middle School
  • HighPalm Beach Gardens High School
  • Office: Douglas Elliman (jupiter)

Property Location

Please provide a valid email address.

45 Windsor Lane on www.www.westerncommunities.us

Offered at the current list price of $709,000, this home for sale at 45 Windsor Lane features 3 bedrooms and 3 bathrooms. This real estate listing is located in AT PGA NATL of Palm Beach Gardens, FL 33418 and is approximately 2,302 square feet. 45 Windsor Lane is listed under the MLS ID of RX-11159288 and has been available through www.www.westerncommunities.us for the Palm Beach Gardens real estate market for 10 days.

Facts About Palm Beach Gardens, FL

Palm Beach Gardens has proudly been the headquarters for the Professional Golfers Association of America.

 

Palm Beach Gardens is located 5 miles north of West Palm Beach, off Interstate 95.

There are about 12 golf courses within the Palm Beach Gardens city limits. The Professional Golfer's Association of America has its headquarters office in this city.

Similar Listings to 45 Windsor Lane

Photo of Listing #RX-11140416
  • MLS® #: RX-11140416
  • 54 Windsor Lane
  • Palm Beach Gardens, FL 33418
  • $710,000
  • 3 Bed, 3 Bath, 2,149 SqFt
  • Residential
Add as Favorite
Photo of Listing #RX-11142575
  • MLS® #: RX-11142575
  • 23 Blenheim Court
  • Palm Beach Gardens, FL 33418
  • $660,000
  • 2 Bed, 3 Bath, 1,798 SqFt
  • Residential
Add as Favorite
Photo of Listing #RX-11126926
  • MLS® #: RX-11126926
  • 625 Masters Way
  • Palm Beach Gardens, FL 33418
  • $749,970
  • 3 Bed, 3 Bath, 2,032 SqFt
  • Residential
Add as Favorite
Photo of Listing #RX-11027667
  • MLS® #: RX-11027667
  • 4576 Thornwood Circle
  • Palm Beach Gardens, FL 33418
  • $660,000
  • 4 Bed, 3 Bath, 2,084 SqFt
  • Residential
Add as Favorite

All listings featuring the BMLS logo are provided by Beaches MLS Inc. Copyright 2026 Beaches MLS. This information is not verified for authenticity or accuracy and is not guaranteed.
© 2026 Beaches Multiple Listing Service, Inc. All rights reserved.

Listing information last updated on February 10th, 2026 at 8:17pm CST.